Situació

Vista exterior de l’església de Santa Magdalena de Parella des del costat de mestral.
M. Anglada

Aquesta capella es troba coronant un dels petits puigs que emmarquen la banda dreta del riu Ter, entre Sant Joan de les Abadesses i Sant Pau de Segúries, a 900 m d’altitud i a la falda de la serra Cavallera que li fa de fons, vora l’extrem de llevant del terme municipal.
Mapa: 256M781. Situació: 31TDG451787.
El camí per a anar-hi comença en un trencall, a mà esquerra vers tramuntana, situat al punt quilomètric 15,30 de la carretera de Sant Joan a Camprodon, poc abans d’arribar al pont dels Plans. El camí travessa el Ter pel pont de Parella i amb mig quilòmetre aproximadament arriba al mas Parella. La capella és visible des de la carretera. (MAB)
Història
L’església de Santa Magdalena de Parella fou construïda poc abans de l’any 1145. El 21 d’abril d’aquell any, l’hisendat de nom Parella i la seva muller Cordovana, propietaris del mas Parella, juntament amb llurs fills, oferien al monestir de Sant Joan de les Abadesses l’església de Santa Magdalena que ells acabaven d’edificar a l’alou de Parella, propi del monestir. L’església quedava sotmesa al rector de Sant Joanipol, el qual havia de nomenar un capellà, mentre que els fundadors es reservaven el dret de patronat.
L’església, que mai no ha estat parròquia amb terme propi i ha estat més aviat una ermita o santuari, era vinculada al mas Parella, documentat, segons Parassols, des de l’any 914, i que l’any 1126 fou infeudat al matrimoni format per Parella i Cordovana, juntament amb el mas Planes i altres terres per l’abat de Sant Joan de les Abadesses, Berenguer Arnau.
Aquesta capella, que ha tingut sempre la consideració de santuari on hom acudia amb motiu de calamitats públiques, actualment només té culte eventualment, i el dia de l’aplec que s’hi celebra el diumenge següent a la festa de Santa Magdalena. (APF-MLIC)
Església

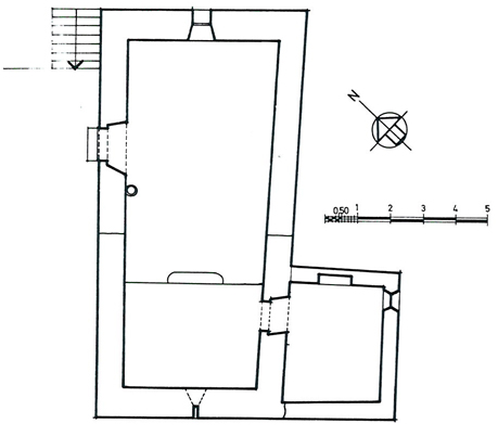
Planta, a escala 1:200, de l’església.
M. Anglada
Es tracta d’una senzilla capella d’una nau de planta sensiblement rectangular, coberta amb volta apuntada, sense absis aparent, orientada al nord-oest, seguint la direcció de la vall, tal com és costum habitual a la comarca del Ripollès.
El presbiteri actual es troba a l’extrem oposat, o sigui, al sud-oest, i la porta és a la façana lateral nord-occidental. Aquesta porta té una petita arcada adovellada sobre una llinda gruixuda, amb una porta que conserva dues filades de ferramenta.
Com a elements que han estat afegits posteriorment cal esmentar la sagristia i el campanar. Pel que fa a l’interior, no podem pas estudiar-ne el tipus d’aparell, puix que aquest és parcialment enguixat i amb pintures sobreposades.

Detall del mur nord-occidental, amb la porta d’entrada.
M. Anglada
Enmig de la nau hom pot observar una junta als murs, la qual es fa més visible des de les façanes laterals, especialment la sud-oriental, així com senyals que la capella fou sobrealçada a partir d’un ràfec mutilat que ha quedat en un nivell més baix. El canvi de qualitat de la pedra i de l’aparell de la façana sud-oriental desconcerta a l’hora d’escatir l’estat originari d’aquesta capella.
Els carreuons han estat ben disposats en filades i ben travats, tot i que és ben palesa una textura diferent, apreciable, tal com hem dit, a les façanes laterals, especialment la del costat sud-oriental.
La coberta ha estat feta amb teula de ceràmica i amb dos vessants, amb una petita cornisa de pedra.
Tot i que la capella en treballs és utilitzada, es troba força ben conservada. (MAB)
Bibliografia
- Eduard Junyent i Subirà: Antigua parroquia de Santa Magdalena de Parella. Itinerario histórico de las parroquias del obispado de Vich, separata de la “Hoja parroquial”, núm. 130, Vic, 1945-1952.
- Antoni Pladevall i Font: Santa Magdalena de Parella, “Full diocesà”, núm. 3 334, Vic 9 març 1975.